Trong quá trình vận hành bơm định lượng, nhiều kỹ sư và nhà máy thường gặp tình trạng bơm bị mất mồi, lưu lượng không ổn định hoặc phát ra tiếng ồn lạ. Một trong những nguyên nhân phổ biến nhất là bẫy khí (Air Trap) hình thành trong đường ống hút.
Bẫy khí nếu không được xử lý kịp thời sẽ ảnh hưởng nghiêm trọng đến hiệu suất định lượng, gây hư hại thiết bị và làm gián đoạn quá trình sản xuất. Bài viết này sẽ phân tích chi tiết về hiện tượng bẫy khí trong bơm định lượng: từ nguyên nhân, hậu quả cho đến giải pháp khắc phục tối ưu.

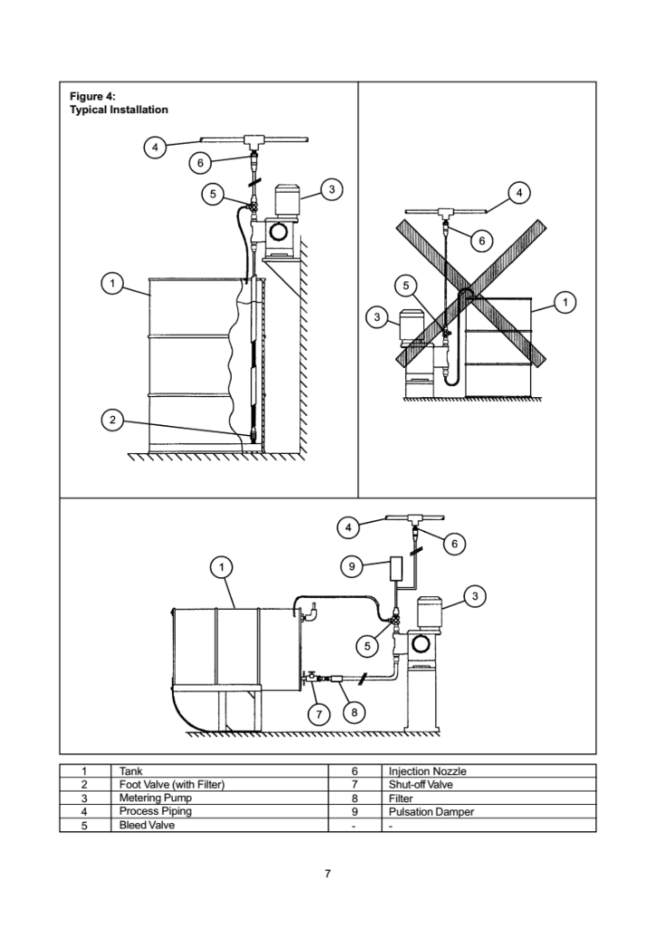
Sơ đồ lắp đặt đường ống bơm định lượng
Bảng phân tích hiện tượng bẫy khí trong bơm định lượng
| Triệu chứng nhận biết | Nguyên nhân chính | Hậu quả đối với hệ thống |
| Bơm không hút được dung dịch, liên tục mất mồi | Khí tích tụ ở đoạn ống cong, cổ ngỗng hoặc lọt khí qua mối nối | Dừng quá trình bơm, gián đoạn sản xuất, sai công thức pha hóa chất |
| Lưu lượng bơm ra thấp hơn giá trị cài đặt | Khí chiếm chỗ trong buồng bơm, đường hút dài và nhỏ | Sai lệch liều lượng, ảnh hưởng chất lượng nước xử lý, sản phẩm không đạt chuẩn |
| Áp suất dao động thất thường, đồng hồ áp nhảy liên tục | Bong bóng khí di chuyển theo dòng chảy | Gây rung lắc, giảm độ chính xác định lượng, tăng mài mòn cơ học |
| Bơm phát ra tiếng ồn lớn, rung bất thường | Xảy ra xâm thực (cavitation) khi bong bóng khí vỡ | Mòn van, rỗ bề mặt kim loại, hỏng màng bơm, giảm tuổi thọ |
| Chi phí thay thế linh kiện tăng cao | Van, màng bơm và phớt liên tục hỏng do khí gây xung lực | Tốn kém chi phí bảo trì, dừng dây chuyền sản xuất, thiệt hại kinh tế lớn |
-
Bẫy khí trong bơm định lượng là gì?
Bẫy khí (Air Trap) là hiện tượng khí hoặc bọt khí tích tụ tại một điểm trong đường ống hút, thường là ở những đoạn cong, khúc cua kiểu cổ ngỗng (swan-neck) hoặc chỗ trũng trong hệ thống.
Do bơm định lượng hoạt động dựa trên nguyên lý hút – nén bằng màng bơm hoặc piston, sự xuất hiện của khí trong đường hút sẽ làm gián đoạn dòng chảy, dẫn đến mất mồi hoặc lưu lượng định lượng không chính xác.
-
Nguyên nhân gây bẫy khí trong đường ống hút
Một số nguyên nhân điển hình dẫn đến hiện tượng bẫy khí:
- Thiết kế đường ống sai kỹ thuật: Đường ống hút có đoạn cong hình cổ ngỗng hoặc vòng lặp trên cao, tạo điều kiện cho khí tích tụ.
- Mối nối không kín: Không khí lọt vào qua các khớp nối, gioăng hoặc phớt làm kín kém chất lượng.
- Chiều dài đường hút quá lớn: Làm tăng nguy cơ tụ khí tại các điểm thấp và gây tổn thất áp suất.
- Chất lỏng dễ bay hơi: Với các hóa chất có nhiệt độ sôi thấp, khí dễ thoát ra khi áp suất giảm trong quá trình hút.
- Thiếu thiết bị xả khí: Không có van xả khí tại điểm cao nhất của hệ thống, khiến khí không thể thoát ra ngoài.
-
Hậu quả của bẫy khí trong bơm định lượng
Hậu quả nghiêm trọng của hiện tượng bẫy khí trong bơm định lượng
Nếu bẫy khí (Air Trap) không được xử lý kịp thời, hệ thống bơm định lượng sẽ đối mặt với nhiều rủi ro nghiêm trọng cả về hiệu suất lẫn tuổi thọ thiết bị:
Mất mồi (Loss of Prime)
- Khi khí tích tụ trong đường hút hoặc buồng bơm, bơm không thể hút được dung dịch.
- Điều này khiến quá trình định lượng bị gián đoạn hoàn toàn, gây dừng hệ thống hoặc làm sai lệch công thức pha trộn hóa chất.
- Đặc biệt nguy hiểm trong các ứng dụng xử lý nước, châm hóa chất nồi hơi hoặc dây chuyền sản xuất liên tục, nơi việc dừng bơm có thể gây hỏng cả quy trình.
Sai lệch lưu lượng định lượng
- Khí chiếm chỗ trong buồng bơm làm giảm thể tích chất lỏng thực tế được bơm ra.
- Hậu quả là lưu lượng thực tế nhỏ hơn nhiều so với cài đặt, gây thiếu hụt hóa chất trong hệ thống.
- Trong các ứng dụng đòi hỏi độ chính xác cao như dược phẩm, thực phẩm, xử lý nước công nghiệp, sự sai lệch này có thể dẫn đến vi phạm tiêu chuẩn chất lượng hoặc gây mất an toàn cho người vận hành.
Dao động áp suất và rung lắc bất thường
- Bong bóng khí di chuyển theo dòng chảy tạo ra các xung áp suất, khiến áp lực trong đường ống dao động liên tục.
- Dao động này làm bơm rung lắc mạnh, gây ồn và làm việc không ổn định.
- Về lâu dài, rung động sẽ dẫn đến mỏi cơ học (fatigue) trên các chi tiết như màng bơm, piston và van một chiều, rút ngắn tuổi thọ thiết bị.
Xâm thực (Cavitation)
- Khi áp suất tại đầu hút giảm thấp hơn áp suất hơi bão hòa, bong bóng khí hình thành và sụp vỡ đột ngột trong buồng bơm.
- Sự sụp vỡ này tạo ra lực va đập lớn, gây hiện tượng mài mòn, pitting (rỗ bề mặt) trên van và bề mặt kim loại.
- Ngoài tiếng ồn lớn và rung động, xâm thực còn làm giảm hiệu suất thủy lực và là nguyên nhân hàng đầu khiến bơm hỏng sớm.
Chi phí bảo trì và vận hành tăng cao
- Khi bẫy khí xuất hiện thường xuyên, các linh kiện như van một chiều, màng bơm, phớt, gioăng sẽ nhanh chóng bị hỏng.
- Nhà máy phải tốn thêm chi phí cho việc thay thế phụ tùng, ngừng máy để bảo dưỡng.
- Trong môi trường sản xuất liên tục, một sự cố nhỏ từ bơm định lượng có thể gây thiệt hại lớn hơn nhiều lần do dừng dây chuyền, thất thoát nguyên liệu hoặc sản phẩm không đạt chất lượng.
-
Cách khắc phục bẫy khí trong bơm định lượng
Để loại bỏ và ngăn chặn bẫy khí, cần tuân thủ những giải pháp sau:
4.1 Thiết kế và bố trí đường ống hợp lý
- Đảm bảo đường ống hút ngắn nhất, thẳng nhất và dốc đều về phía bồn chứa.
- Tránh hoàn toàn các đoạn cong cổ ngỗng hoặc khúc cua gấp. Nếu cần đổi hướng, sử dụng khúc cua bán kính lớn.
4.2 Trang bị van và thiết bị phụ trợ
- Lắp van xả khí (air vent valve) hoặc van tự động tại điểm cao nhất trong hệ thống.
- Lắp lọc rác (strainer) ở đầu hút để loại bỏ cặn bẩn, ngăn tắc nghẽn và hạn chế khí lọt vào buồng bơm.
4.3 Kiểm soát chất lượng lắp đặt
- Toàn bộ mối nối phải kín tuyệt đối, không để lọt khí.
- Sau khi lắp đặt, kiểm tra rò rỉ bằng dung dịch xà phòng hoặc áp lực thử.
4.4 Đặt bơm gần bồn chứa
- Giữ khoảng cách từ bơm đến bồn chứa càng ngắn càng tốt để giảm chiều dài đường hút.
- Đảm bảo đầu hút luôn ngập hoàn toàn trong chất lỏng.
4.5 Chọn vật liệu và phụ kiện phù hợp
- Dùng ống kim loại hoặc nhựa có bề mặt nhẵn để giảm ma sát.
- Tránh dùng ống kém chất lượng hoặc đã lão hóa dễ nứt gãy, gây lọt khí.
5. Lời khuyên kỹ thuật từ chuyên gia
- Khi lắp đặt bơm định lượng, luôn ưu tiên thiết kế tránh bẫy khí ngay từ đầu thay vì xử lý sự cố sau này.
- Với các hệ thống phức tạp, nên tham khảo bản vẽ kỹ thuật hoặc tư vấn từ nhà cung cấp để có giải pháp đường ống tối ưu.
- Thường xuyên kiểm tra và bảo trì hệ thống đường hút để kịp thời phát hiện rò rỉ hoặc điểm tích tụ khí.
Kết luận
Bẫy khí trong bơm định lượng là hiện tượng phổ biến nhưng hoàn toàn có thể ngăn ngừa và xử lý hiệu quả nếu người vận hành nắm rõ nguyên nhân và tuân thủ đúng quy trình lắp đặt.
👉 Khi áp dụng đúng kỹ thuật – thiết kế đường ống ngắn, thẳng, dốc đều, lắp van xả khí, kiểm tra rò rỉ và giữ cho đầu hút ngập trong chất lỏng – hệ thống bơm định lượng sẽ vận hành ổn định, chính xác và bền bỉ, giúp doanh nghiệp tiết kiệm chi phí và đảm bảo hiệu quả sản xuất.
📞 Liên hệ VIMEX – Chuyên gia bơm công nghiệp để được tư vấn chi tiết về giải pháp chống bẫy khí và lắp đặt bơm định lượng đúng kỹ thuật.
Điện thoai: 0989 775 196
