HOTLINE: 0911.861.605
Số 32B, Đường Khuyến Lương, Phường Lĩnh Nam, Thành phố Hà Nội
Hỗ trợ khách hàng tổng đài miễn phí
Chưa có sản phẩm trong giỏ hàng.
Sản phẩm chất lượng thương hiệu uy tín
Tư vấn chính xác tác phong chuyên nghiệp
Giá thành tốt nhất Bảo hành uy tín
Thanh toán tại nhà an toàn 100%
Bơm định lượng Doseuro FM050N-30/B-13
Bơm định lượng OBL 1M75P1070SVBSMV0M3-002
Bơm định lượng OBL 1M521P1115SVBSMV0M3-001
Bơm định lượng SEKO AKL600
Bơm định lượng SEKO MS1C 138A
Bơm định lượng Seko MM2H157G
Bơm định lượng Doseuro D 050N-50/C-1
Bơm định lượng Doseuro D 100N-90/B-13
Bơm định lượng Blue White C645P – Bơm hóa chất bể bơi USA
Bơm định lượng Blue-White C6250P – Giải pháp châm Javen hiệu quả
Bơm định lượng JLM0210 châm Clo trong xử lý nước sạch
Bơm Định Lượng Dosaki JLM1003 10L/H – 3 Bar
Bơm Định Lượng DOSAKI JLM0505 5L/h 5 Bar
Bơm định lượng pít tông JPR LIGAO Áp suất đến 500 bar, lưu lượng 15–1620 L/h
Bơm Định Lượng Piston JPX hiệu LIGAO
Bơm định lượng piston LIGAO JPW – Lưu lượng lớn, áp suất cao
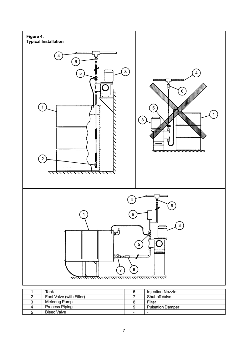
Trong hệ thống châm hóa chất công nghiệp, lắp đặt bơm định lượng đúng kỹ thuật quan trọng không kém việc chọn đúng model bơm. Rất nhiều sự cố như mất mồi, lưu lượng...
Trong các hệ thống châm hóa chất công nghiệp, lắp đặt bơm định lượng đúng kỹ thuật quyết định trực tiếp đến độ chính xác lưu lượng, độ ổn định vận hành và tuổi...
Khi xử lý nước hoặc nước thải, hai loại bơm định lượng/châm hóa chất thường được cân nhắc là bơm định lượng màng (dosing diaphragm pump) và bơm nhu động (peristaltic pump). Yêu cầu...
Bơm định lượng là thiết bị bơm dịch chuyển tích cực (positive displacement) chuyên dùng cho châm/cấp hóa chất chính xác – từ axit, bazơ, hóa chất ăn mòn cho đến chất lỏng nhớt...
Tên tài khoản hoặc địa chỉ email *
Mật khẩu *
Ghi nhớ mật khẩu Đăng nhập
Quên mật khẩu?